ขายทาวน์โฮม The Exclusive สาทร-กัลปพฤกษ์
อัพเดทล่าสุด :
-
เลขที่ประกาศ :
5954959
เข้าชม :
ดิ เอ็กซ์คลูซีฟ สาทร - กัลปพฤกษ์ บางแค กรุงเทพมหานคร -
ข้อมูลประกาศ
รายละเอียด
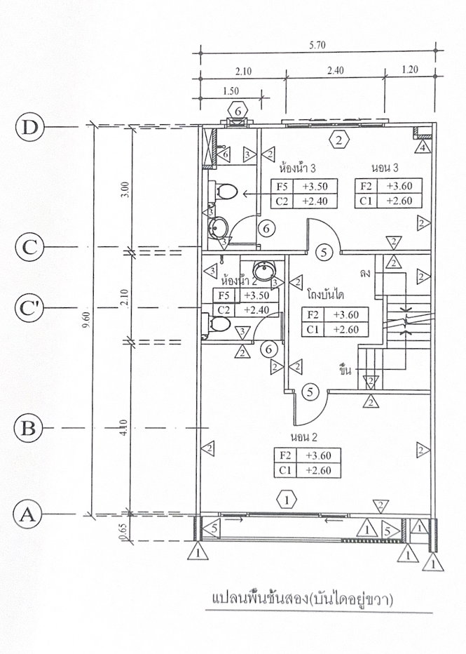
ขาย ทาวโฮมส์ 3 ชั้น ดิ เอ็กซ์คลูซีฟ สาทร กัลปพฤกษ์ The Exclusive Sathon Kanlapapruek เนื้อที่ 24.2 ตร.ว.
บ้านเลขที่ 699/125
ที่ตั้ง ซอยบางแค 14 ถนนกาญจนภิเษก แขวงบางแค เขตบางแค กรุงเทพฯ 10160
รายละเอียดบ้าน
⁃ ประเภท ทาวน์โฮม 3 ชั้น
⁃ เนื้อที่ 24.2 ตร.ว.
⁃ พื้นที่ใช้สอยมากกว่า 200 ตารางเมตร
⁃ ขนาด 3 ห้องนอน 4 ห้องน้ำ มีห้องน้ำในตัวทุกห้อง
⁃ จอดรถได้ 2 คัน
⁃ ตำแหน่ง: ซอย 5 หลังที่ 3 ฝั่งตรงข้ามเป็นกำแพง (ไม่มีบ้านตรงข้าม)
⁃ หน้าบ้านหันไปทางค่อนทิศเหนือ (330 องศาตะวันตกเฉียงเหนือ)
⁃ ลงเสาเข็มที่จอดรถหน้าบ้านแล้ว
⁃ หลังคาคลุมเมทัลชีท
⁃ ต่อเติมครัวหลังบ้าน (กว้างมากๆ)
⁃ กั้นระเบียงหน้าบ้านชั้น 3 เพิ่มเป็นอีก 1 ห้องเรียบร้อย
ราคาขาย 5,000,000 บาท
ทักมาต่อรองราคาได้นะคะ
เจ้าของโครงการ พีซแอนด์ลิฟวิ่ง Peace & Living
ลักษณะโครงการ
– ทาวน์โฮม 2 ชั้น เฟสใหม่
– ทาวน์โฮม 3 ชั้น หน้ากว้าง 5.7 เมตร พื้นที่โครงการ 33 ไร่ 8.7 ตร.ว. จำนวนบ้าน 134 ยูนิต ที่จอดรถทั้งหมด 2 คัน โซน เขตบางแค ขนส่งสาธารณะ
– ใกล้ทางด่วนวงแหวนกาญจนาภิเษก
– รถไฟฟ้า BTS สายสีน้ำเงิน
สถานที่สำคัญใกล้เคียง
1. ตลาดบางแค
2. สำเพ็ง 2
3. เดอะมอลล์ บางแค
4. ซีคอน บางแค
5. โลตัส บางแค
6. บิ๊กซี กัลปพฤกษ์
7. แม็คโคร บางบอน
8. โรงพยาบาลเกษมราษฎร์
9. โรงพยาบาลบางปะกอก 8
10. ม.สยาม
11. รร.นานาชาติบริติชโคลัมเบีย
สิ่งอำนวยความสะดวก
– Clubhouse
– สระว่ายน้ำ
– ถนนเมนกว้าง 12 เมตร, ถนนซอยกว้าง 9 เมตร
– สวนสาธารณะ
– After Sale Service
– Access Card Control
– CCTV รอบโครงการ
– รั้วสูงรอบโครงการ
– รปภ. 24 ชม.
รายละเอียด
- The Exclusive Sathon - Kanlapapruek
- 5,000,000
- 3 ชั้น
- 3 ห้องนอน
- 4 ห้องน้ำ
- 24 ตร.ว.
- 200 ตร.ม.
- 2 คัน
- พร้อมอยู่
สิ่งอำนวยความสะดวก
- ภายในบ้าน
- ภายในโครงการ
บางแค กรุงเทพมหานคร
0 ประกาศเช่า
รายละเอียดโครงการ
ประกาศขายในโครงการใกล้เคียง
(289AGEV)ขายบ้านแฝด บางแค ราคาดี ใกล้เดอะมอลล์บางแค | หมู่บ้านปารวีร์ (กาญจนาซอย 3) | 2.8 ล้าน เหมาะทั้งอยู่อาศัยและลงทุน36 ตร.วา2 ชั้น฿2,800,000UPDATE !
ขายทาวน์โฮม 2 ชั้น รีโนเวทใหม่ พร้อมอยู่ | สาทรแกรนด์วิลล์ | ทำเลศักยภาพโซนบางแค–พระราม 224 ตร.วา2 ชั้น฿3,299,000UPDATE !
📌 ขายทาวน์เฮาส์ โครงการ วิลเลต ทาวน์โฮม กาญจนาภิเษก-บางแค 2 ชั้น 3 ห้องนอน 2 ห้องน้ำ26 ตร.วา2 ชั้น฿3,900,000UPDATE !
📌 ขายทาวน์เฮาส์ โครงการ สินทรัพย์นครการ์เด้นท์ 3 ชั้น 4 ห้องนอน 3 ห้องน้ำ29.9 ตร.วา3 ชั้น฿3,500,000UPDATE !
📌 ขายทาวน์เฮาส์ โครงการ โกลเด้น ทาวน์ บางแค 2 ชั้น 3 ห้องนอน 2 ห้องน้ำ16 ตร.วา2 ชั้น฿3,190,000UPDATE !
📌 ขายทาวน์เฮาส์ โครงการ สิริ เพลส กัลปพฤกษ์-สาทร 2 ชั้น 3 ห้องนอน 2 ห้องน้ำ18 ตร.วา2 ชั้น฿3,890,000UPDATE !
📌 ขายทาวน์เฮาส์ โครงการ เดอะ มิราเคิล พลัส เพชรเกษม 63 3 ชั้น 3 ห้องนอน 3 ห้องน้ำ22 ตร.วา3 ชั้น฿3,400,000UPDATE !
📌 ขายทาวน์เฮาส์ โครงการ เดอะ คอนเนค อัพ 3 วงแหวน - บางแค 3 ชั้น 4 ห้องนอน 3 ห้องน้ำ25 ตร.วา3 ชั้น฿3,490,000UPDATE !
📌 ขายทาวน์โฮมโครงการ เดอะ มิราเคิล สาทร-กัลปพฤกษ์ 2 ชั้น 3 ห้องนอน 3 ห้องน้ำ21 ตร.วา2 ชั้น฿3,290,000UPDATE !
📌 ขายทาวน์เฮาส์ โครงการ เมอริโต้ เพชรเกษม 63 3 ชั้น 4 ห้องนอน 3 ห้องน้ำ20 ตร.วา3 ชั้น฿4,190,000UPDATE !
📌 ขายทาวน์โฮม โครงการ เดอะ มิราเคิล เพชรเกษม 63 โครงการ 3 2 ชั้น 4 ห้องนอน 3 ห้องน้ำ35.9 ตร.วา2 ชั้น฿5,100,000UPDATE !
ที่ตั้ง & สถานที่ใกล้เคียง
โครงการใกล้เคียง


2.2 กม.

2.3 กม.
7.5 กม.
7.6 กม.
ให้นายหน้ามืออาชีพช่วยค้นหาให้ฟรี


ประกาศขายทาวน์เฮ้าส์ในโครงการอื่นๆ ใกล้เคียง
ประกาศเช่าทาวน์เฮ้าส์ในโครงการอื่นๆ ใกล้เคียง






































































