ขายคอนโดศรีวรา แมนชั่น 1 ชั้น 22–23 ทำแลดี เดินทางสะดวก ใกล้MRT ศูนย์วัฒนธรรมแห่งประเทศไทย
อัพเดทล่าสุด :
-
เลขที่ประกาศ :
5832585
เข้าชม :
ศรีวรา แมนชั่น ดินแดง กรุงเทพมหานคร -
ข้อมูลประกาศ
รหัสทรัพย์ : PA0556
ขายคอนโดศรีวรา แมนชั่น 1 ชั้น 22–23 ทำแลดี เดินทางสะดวก ใกล้MRT ศูนย์วัฒนธรรมแห่งประเทศไทย
ที่ตั้ง : 236 ซ. รัชดาภิเษก 7 แยก 9 แขวงดินแดง เขตดินแดง กรุงเทพมหานคร 10400
แผนที่ : https://maps.app.goo.gl/BnnhR2LZ8e6DfxY76
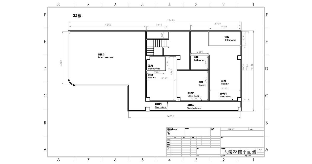
ขนาดพื้นที่ : 436 ตรม.
รายละเอียด :
- ชั้น 22–23
- 7 ห้องนอน
- 5 ห้องน้ำ
- ห้องมุมชั้นบนสุด วิวสวย ลมเย็นสบาย
- หน้าตึกทางเข้ามี 7-11 และบิ๊กซี รัชดา
- ทำแลดี เดินทางสะดวก
สถานที่ใกล้เคียง :
- บิ๊กซี รัชดาภิเษก : 450 เมตร
- เดอะ สตรีท รัชดา : 600 เมตร
- ตลาด ดิวัน รัชดา : 800 เมตร
- ศูนย์วัฒนธรรมแห่งประเทศไทย : 1 กม
- โรงแรม ดิ อิมเมอริลต์ : 1 กม
- วิทยาลัยอาชีวศึกษาพณิชยการจำนงค์ : 1.6 กม
- สถานีตำรวจนครบาลดินแดง : 2.1 กม
ราคาขาย : 14,800,000 บาท
สนใจติดต่อ
คุณOuli(อูลี่) : 093-4349089
ID / WeChat : oulinee
出售曼谷公寓 SRIVARA MANSION 1,22-23 层,装修完善,交通便利,靠近泰国文化中心地铁站
地址:236 Soi Ratchadaphisek 7 Yak 9, Din Daeng Subdistrict, Din Daeng District, Bangkok 10400
面积:436 平方米
公寓详细信息:
· 22-23 层
· 7 间卧室
· 5 间浴室
· 顶层转角单元,视野好,通风凉爽
· 公寓入口前有 7-11 便利店和 Big C Ratchada 超市
· 装修完善,交通便利
附近地点:
· Big C Ratchadaphisek 超市:450 米
· The Street Ratchada 购物中心:600 米
· The One Ratchada 市场:800 米
· 泰国文化中心:1 公里
· The Emerald Hotel 酒店:1 公里
· Chumnong Commercial College 职业学院:1.6 公里
· Din Daeng 警察局:2.1 公里
售价:14,800,000 泰铢
联系方式:
LINE / WeChat ID:oulinee
电话:0934349089 (Ouli)
รายละเอียด
- Srivara Mansion
- 14,800,000 (33,945 บาท/ตร.ม.)
- สตูดิโอ
- 22
- 7 ห้องนอน
- 5 ห้องน้ำ
- 436 ตร.ม.
สิ่งอำนวยความสะดวก
- ภายในห้อง
- ภายในโครงการ

ดินแดง กรุงเทพมหานคร
88 ประกาศเช่า
26 ประกาศขาย
รายละเอียดโครงการ
ประกาศขายในโครงการ ศรีวรา แมนชั่น
#A124286 ✅ 3/8/68 ขายคอนโด Srivara Mansion 📲📢สอบถาม ld line @condoboy2 ห้องนอน60m2ชั้น 6฿3,900,000UPDATE !
คอนโด 4-ห้องนอน ที่ ศรีวรา แมนชั่น คอนโดมิเนียม 1 ใกล้ MRT ศูนย์วัฒนธรรมแห่งประเทศไทย (ID 2594047)4 ห้องนอน300m2ชั้น 26฿13,900,000UPDATE !
คอนโด 3-ห้องนอน ที่ ศรีวรา แมนชั่น คอนโดมิเนียม 1 ใกล้ MRT ศูนย์วัฒนธรรมแห่งประเทศไทย (ID 1177403)3 ห้องนอน160m2ชั้น 22฿10,200,000UPDATE !
(176AGJD) ขาย ศรีวรา แมนชั่น1 1ห้องนอน 40 ตรม. ชั้น 11 ติดต่อ(คุณเจษฎ์ 089-987-2251) Line id : @hatcheryAgent1 ห้องนอน40m2ชั้น 11฿2,790,000UPDATE !
ขายคอนโด ศรีวรา แมนชั่น 1 อาคาร 1 ชั้น 21 3 ห้องนอน ขนาด 150 ตรม ใกล้ บิ๊กซี รัชดาภิเษก3 ห้องนอน150m2ชั้น 21฿5,190,000UPDATE !
ขายคอนโด ศรีวรา แมนชั่น 1 อาคาร 1 ชั้น 11 1 ห้องนอน ขนาด 40 ตรม ใกล้ บิ๊กซี รัชดาภิเษก1 ห้องนอน40m2ชั้น 11฿2,650,000UPDATE !
ขายคอนโด ศรีวรา แมนชั่น 1 อาคาร 1 ชั้น 14 1 ห้องนอน ขนาด 41 ตรม ใกล้ บิ๊กซี รัชดาภิเษก1 ห้องนอน41m2ชั้น 14฿2,490,000UPDATE !


ที่ตั้ง & สถานที่ใกล้เคียง
โครงการใกล้เคียง

มีคอนโดให้เช่า 472 ประกาศ
ขายคอนโด Noble Revolve Ratchadaมีคอนโดขาย 139 ประกาศ



2.3 กม.
2.5 กม.
4.5 กม.
2.9 กม.
5.5 กม.
2.8 กม.
3 กม.
2.7 กม.
3.2 กม.
2.8 กม.
5.5 กม.
2.8 กม.
3 กม.
2.7 กม.
ประกาศอื่นๆในโครงการ Srivara Mansion
ประเภทห้อง
เรียงตาม:
เลื่อนประกาศล่าสุด
ให้นายหน้ามืออาชีพช่วยค้นหาให้ฟรี


ประกาศขายห้อง studio ในโครงการอื่นๆ ใกล้เคียง
ประกาศเช่าคอนโด studio ในโครงการอื่นๆ ใกล้เคียง




















![[ขายพร้อมผู้เช่า] คอนโดห้องมุม วิวดี มีที่จอดรถ ติดห้าง เดินไป MRT ศูนย์วัฒนธรรมได้](https://bcdn.propertyhub.in.th/pictures/202511/20251109/1P1PznFCDxmH7SU4ZrHX.jpg?width=486&height=360)





















































